A barber shop in a busy parade of shops in Slough is set to be converted into a cafe restaurant.
The gents’ hairdressers is located within a parade of 12 shops and takeaways at the busy Three Tuns junction in Slough, which connects Tuns Lane and Farnham Road with Bath Road.
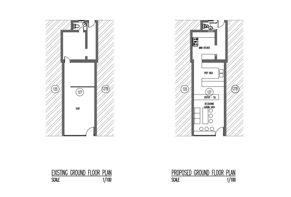
Last September, a plan was submitted to convert the hairdressers next to an estate agents in the parade into a cafe restaurant.

The project attracted objections from neighbours, who complained about the proliferation of food establishments at the Three Tuns shops.
There are currently five eating establishments in the parade: Pizza Hut, Paradise Grill & Pizza, Domino’s, Slough Kebab & Grill and the Three Tuns Cafe.
A neighbour also complained that yet another eatery would harm the ‘tranquillity’ of the area.
The objection stated: “The opening of new food establishments would
contribute to increased noise levels, especially during peak hours.
“This could disrupt the peace and tranquillity of the community, negatively impacting residents’ quality of life.
“Moreover, additional eateries may lead to excess waste generation and pollution if not managed efficiently.”
But now the conversion project can go ahead after councillors agreed to it in a meeting.
In rebuffing objections from neighbours, council planning officer Michael Scott was keen to stress that the application is focused simply on installing a kitchen extraction fan.
Mr Scott also noted that the council’s environmental health officer had no objections to the installation of the extraction equipment.
A planning agent from SA Associates supporting the application said: “The proposal doesn’t have any visual impact on the street scene, or on the rear.
“In fact, the owners are installing a system that is not going to have any impact environmentally, and the environmental officer is recommending it for approval.”
Councillor Iftakhar Ahmed (Conservative, Wexham Court) spoke in support of the application as well, saying that he was “content” with the detail of Mr Scott’s report and recommendation to approve the plan.
The committee unanimously approved the conversion project at the planning committee meeting on Wednesday, 31 January, subject to conditions.
One of these will be that the fan will be switched off between 11pm at night to 8am in the morning to protect the amenity of neighbours, including those living in two flats above the property.
The conversion of the hairdressers into a restaurant is considered permitted development as both types of business fall within ‘Use Class E’ building uses.
A letter from SA Associates stated that the cafe restaurant will be open from 5am to 11pm each day and alcohol would not be served at the premises.



